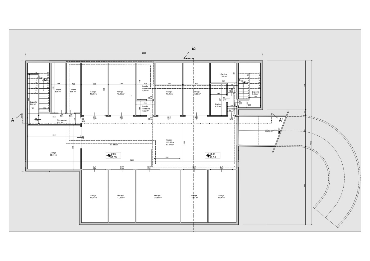
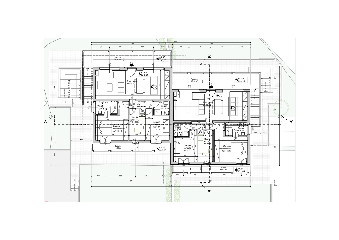
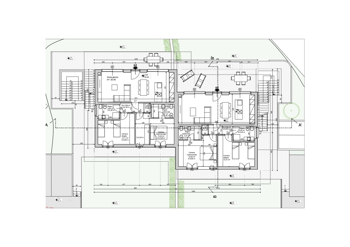
A Gressan, in bifamiliare di prossima costruzione, ultimi appartamenti con giardino privato. Gli appartamenti sono composti da soggiorno con cucina, due camere da letto, studio, doppi servizi, balcone, cantina e giardino privato. Completano l’offerta il posto auto e il garage. A partire da Euro 325.000.













